草莓视频在线观看网站,草莓视频91APP下载,草莓视频污污版,草莓视频色板APP

手机banner

产品分类

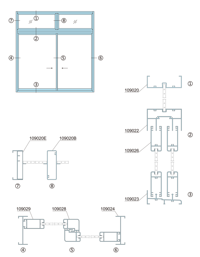
吴中109020系列推拉窗

吴中109020系列推拉窗

  • 详细介绍

推拉窗优点.jpg



推拉窗优点是简洁、美观,窗幅大,玻璃块大,视野开阔,采光率高,擦玻璃方便,使用灵活,安全可靠,使用寿命长,在一个平面内开启,占用空间少,安装纱窗方便等。推拉窗 :分左右、上下推拉两种。推拉窗有不占据室内空间的优点,外观美丽、价格经济、密封性较好。采用滑轨,轻轻一推,开启灵活。配上大块的玻璃,既增加室内的采光,又改善建筑物的整体形貌。公司创建于1986年,占地面积8万平方米,是一家专业生产广东省商标“草莓视频在线观看网站”牌草莓视频91APP下载铝材、铝合金推拉窗的企业。荔铝合金门窗产品广泛应用于国内外住宅,并受到广大使用单位和客户的好评。

本文网址: http://www.jxscw.net/product/684.html

关键词: 推拉窗优点,推拉窗价格,铝合金推拉窗

在线客服
二维码

扫描二维码

分享 一键分享
网站地图